Los arquitectos de Madrid inauguran hoy su macrosede – CincoDías.com (LASEDE del COAM)


En la calle Hortaleza

El COAM permuta su patrimonio inmobiliario disperso por 20.000 metros cuadrados en las antiguas Escuelas Pías.

Lola Fernández – Madrid –

En pleno centro de Madrid, en el edificio de las antiguas Escuelas Pías, sito en el número 63 de la calle Hortaleza, la presidenta de la Comunidad de Madrid, Esperanza Aguirre, y la alcaldesa, Ana Botella, inaugurarán hoy la nueva sede del Colegio Oficial de Arquitectos de Madrid (COAM).

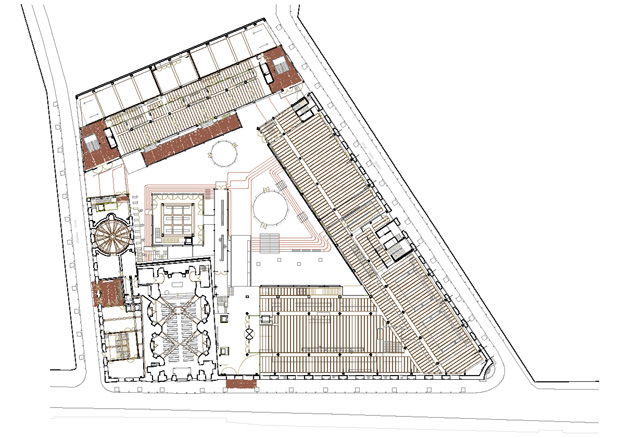
Planta Acceso LASEDE - Fuente: Nota de Prensa COAM
Planta Acceso LASEDE - Fuente: Nota de Prensa COAM

«En total, se trata de 20.000 metros cuadrados edificados sobre rasante, de los que 8.000 irán a dependencias municipales», según explicó ayer el decano de los arquitectos madrileños, José Antonio Granero Ramírez.

La inversión ha ascendido a 37 millones de euros, obtenidos gracias al intercambio de patrimonio inmobiliario disperso que el colegio tenía en Madrid y a las 200 plazas de garaje fruto de la rehabilitación.

«Por ejemplo, la antigua sede del COAM, en la calle Barquillo, se ha vendido a la constructora concesionaria, FCC«, añadió Granero en la presentación a la prensa de las nuevas dependencias colegiales.

La rehabilitación del nuevo edificio se llevó a cabo tras firmar el convenio con el Ayuntamiento de Madrid. «No había muchas instituciones que pudieran poner en marcha esta transformación, después de que el incendio de 1995 dejara inutilizado el edificio», aseguró el presidente de los arquitectos madrileños.

A partir de ahora, el ayuntamiento dispone de 8.000 metros cuadrados que utilizará para crear una biblioteca, una escuela infantil, una piscina, una escuela de música y un centro para mayores. El resto de los 12.000 metros cuadrados se los quedará el Colegio de Arquitectos, aunque de ellos solo utilizará la mitad.

LASEDE - Sección (Detalle) Imagen: Nota de Prensa COAM
LASEDE - Sección (Detalle) Imagen: Nota de Prensa COAM

«La biblioteca de investigación o la Fundación de la Arquitectura serán algunos de sus usos, aunque tenemos pendiente también que se integre el Museo Nacional de Arquitectura«, advirtió Granero. La otra mitad se destinará a un restaurante y un espacio para eventos, cuyo concurso saldrá próximamente y al que ya se han interesado los chefs de mayor prestigio. «Queremos que se convierta en el restaurante de moda de todo Madrid», comentó el decano.

Gonzalo Moure ha sido el arquitecto que se ha encargado de la obra, después de que se presentaran un total de 200 proyectos al concurso internacional.

vía Los arquitectos de Madrid inauguran hoy su macrosede – CincoDías.com.

Los arquitectos inventan un espacio para repensar las ciudades del futuro YouTube.

El Colegio Oficial de Arquitectos de Madrid (COAM) ha inaugurado hoy su nuevo edificio, bautizado como «LASEDE», fruto de la remodelación de las antiguas Escuelas Pías de San Antón de la calle Hortaleza 63.

Inauguración LASEDE 29.02.12. NOTA DE PRENSA COAM.

Datos clave LASEDE

Descargar Monográfico en formato*.pdf – Nueva sede del COAM y equipamientos municipales.

https://twitter.com/#!/darioalvarez/status/174907414599053312



Wang Shu, Premio Pritzker de Arquitectura 2012 | Por su ‘obra artesanal’ | elmundo.es


Cultura

ARQUITECTURA | Por su ‘obra artesanal

  • El arquitecto chino sucede al portugués Eduardo Souto de Moura en el palmarés del galardón más prestigioso.
  • Se entregará en Pekín, por primera vez en su historia, el próximo 25 de mayo.

Efe | Los Ángeles

Wang Shu, premio Pritzker 2012.| Efe - ElMundo.es
Wang Shu, premio Pritzker 2012.| Efe - ElMundo.es

El arquitecto chino Wang Shu, de 48 años, ha sido galardonado hoy con el premio Pritzker, considerado el Nobel de la Arquitectura, por una obra artesanal, respetuosa con el medio ambiente y de gran profundidad filosófica, en la que conviven de forma armoniosa tradición y modernidad.

Wang, nacido el 4 de noviembre de 1963 en Urumqi, en la remota región uigur de Xinjiang, sólo ha trabajado dentro de China y ha desarrollado la mayor parte de su obra en Hangzhou, a 170 kilómetros al suroeste de Shangai, donde dirige desde 1997 junto a su esposa, Lu Wenyu, el Estudio de Arquitectura Amateur.

El presidente de la Fundación Hyatt, promotora de este premio a lo largo de 34 ediciones, Thomas J. Pritzker, informó hoy del fallo del jurado, presidido por Lord Palumbo y del que forman parte el chileno Alejandro Aravena y la británico-iraquí Zaha Hadid, entre otros. Wang Shu sucede en el palmarés al portugués Eduardo Souto de Moura.

Importancia del galardón para China

«El hecho de que se haya elegido a un arquitecto chino supone un importante paso en el reconocimiento del papel que va a jugar China en el desarrollo de los ideales arquitectónicos. Además, el éxito del urbanismo chino en las próximas décadas será importante, no ya para China, sino para el mundo entero», señaló Pritzker.

«Este urbanismo, como el del resto del mundo, requiere estar en armonía con la cultura y las necesidades locales» y, en el caso de China, debe compatibilizar «sus tradiciones y su pasado con las exigencias de un desarrollo sostenible», añadió el promotor del galardón.

El premio consiste en 100.000 dólares (unos 74.600 euros) y una medalla de bronce con una inscripción latina en su reverso: «Firmitas, Utilitas, Venustas» (Firmeza, Utilidad y Belleza), el lema de Vitruvio, considerado uno de los ‘padres’ de la Arquitectura. El galardón se entrega cada año en distintas ciudades y en esta ocasión, y por primera vez en su historia, la ceremonia se trasladará el 25 de mayo a Pekín.

vía Wang Shu, premio Pritzker | Cultura | elmundo.es.

The world of Wang Shu @BOZAR

Tradition, modernity, and recycling are the keywords of the Chinese architect Wang Shu. Iwan Strauven of BOZAR ARCHITECTURE introduces us to his world. More on:  http://www.chinaatbozar.be/en/event/architecture-resistance

ARTE

Wang Shu, premio Pritzker de Arquitectura

El jurado del prestigioso galardón ha destacado la obra artesanal, respetuosa con el medio ambiente y de gran profundidad filosófica del arquitecto chino

EFE / LOS ÁNGELES

El arquitecto chino Wang Shu, de 48 años, ha sido galardonado con elpremio Pritzker, considerado el Nobel de la Arquitectura, por una obra artesanal, respetuosa con el medio ambiente y de gran profundidad filosófica, en la que conviven de forma armoniosa tradición y modernidad.

Wang, nacido el 4 de noviembre de 1963 en Urumqi, en la remota región uigur de Xinjiang, solo ha trabajado dentro de China y ha desarrollado la mayor parte de su obra en Hangzhou, a 170 kilómetros al suroeste de Shangai, donde dirige desde 1997 junto a su esposa, Lu Wenyu, el Estudio de Arquitectura Amateur.

Amateur Architecture.

Ningbo Historic Museum by Wang Shu - karmatrendz.wordpress.com
Ningbo Historic Museum by Wang Shu - karmatrendz.wordpress.com

Chino Wang Shu, premio Pritzker de Arquitectura

Fue considerado por su obra artesanal, respetuosa con el medio ambiente.

El chino Wang Shu, premio Pritzker 2012

EcoDiario.es

El chino Wang Shu gana el premio Pritzker de Arquitectura – ElPais.com

  • El arquitecto solo ha trabajado en China

  • Fue el responsable del pabellón del país asiático en la Bienal de Venecia de 2006
  • Dirige con su mujer el Estudio de Arquitectura Amateur en el interior del país

Los Ángeles

El arquitecto chino Wang Shu, de 48 años, ha sido galardonado hoy con el premio Pritzker, considerado el Nobel de la Arquitectura, por una obra artesanal, respetuosa con el medio ambiente y de gran profundidad filosófica, en la que conviven de forma armoniosa tradición y modernidad.

Una de las sedes de la Academia de Arte de China, diseñada por el arquitecto Wang Shu - 20minutos.es
Una de las sedes de la Academia de Arte de China, diseñada por el arquitecto Wang Shu - 20minutos.es

Wang, nacido el 4 de noviembre de 1963 en Urumqi, en la remota región uigur de Xinjiang, sólo ha trabajado dentro de China y ha desarrollado la mayor parte de su obra en Hangzhou, a 170 kilómetros al suroeste de Shangai, donde dirige desde 1997 junto a su esposa, Lu Wenyu, el Estudio de Arquitectura Amateur. El arquitecto fue el responsable del pabellón que representó a China en la Bienal de Venecia de 2006, la primera visita del país asiático a esta cita cultural. También ha expuesto su obra en el Centro Pompidou.

Wang Shu, Pritzker de Arquitectura – Fotogalería en 20minutos.es

Wang Shu of The People’s Republic of China Is the 2012 Pritzker Architecture Prize Laureate
Wang Shu of The People’s Republic of China Is the 2012 Pritzker Architecture Prize Laureate

Announcement – The Pritzker Architecture Prize

 Wang Shu of The People’s Republic of China Is the 2012 Pritzker Architecture Prize Laureate

Front of medal - Pritzker Architecture Prize
Front of medal - Pritzker Architecture Prize

Los Angeles, CA— Wang Shu, a 48 year old architect whose architectural practice is based in Hangzhou, The People’s Republic of China, will be the recipient of the 2012 Pritzker Architecture Prize, it was announced today by Thomas J. Pritzker, chairman of The Hyatt Foundation which sponsors the prize. The formal ceremony for what has come to be known throughout the world as architecture’s highest honor will be in Beijing on May 25.

In announcing the jury’s choice, Pritzker elaborated, “The fact that an architect from China has been selected by the jury, represents a significant step in acknowledging the role that China will play in the development of architectural ideals. In addition, over the coming decades China’s success at urbanization will be important to China and to the world. This urbanization, like urbanization around the world, needs to be in harmony with local needs and culture. China’s unprecedented opportunities for urban planning and design will want to be in harmony with both its long and unique traditions of the past and with its future needs for sustainable development.”

Biography: Wang Shu – The Pritzker Architecture Prize

Jury Citation – The Pritzker Architecture Prize

The architecture of the 2012 Pritzker Prize Laureate Wang Shu, opens new horizons while at the same time resonates with place and memory. His buildings have the unique ability to evoke the past, without making direct references to history. Born in 1963 and educated in China, Wang Shu’s architecture is exemplary in its strong sense of cultural continuity and re-invigorated tradition. In works undertaken by the office he founded with his partner and wife Lu Wenyu, Amateur Architecture Studio, the past is literally given new life as the relationship between past and present is explored. The question of the proper relation of present to past is particularly timely, for the recent process of urbanization in China invites debate as to whether architecture should be anchored in tradition or should look only toward the future. As with any great architecture, Wang Shu´s work is able to transcend that debate, producing an architecture that is timeless, deeply rooted in its context and yet universal.

Entradas anteriores en ArquitecturaS:

El IVAM dedica una muestra a la primera mujer ganadora del “Nobel de Arquitectura” (Premio Pritzker): Zaha Hadid – Levante-EMV

Zumthor, el esencialista de lo sensual

Listado de los ganadores del Premio Pritzker. ¿Cuál es tu ganador del Premio Pritzker favorito? – Listas – 20minutos.es.

https://twitter.com/#!/darioalvarez/status/174186822409273349

Starbucks Opens New Reclamation Drive Thru Made From Recycled Shipping Containers | Inhabitat – Green Design Will Save the World


by Bridgette Meinhold

Photo: Inhabitat.com
Photo: Inhabitat.com

Inspiration for the shipping container drive thru came from the company’s use of the containers to ship their coffee and tea from sources around the world. Rather than let the containers wallow after moving their goods, the brilliant minds in Seattle thought to put them to good use and so the Reclamation Drive Thru was brewed up. So far, it’s just a one-off shop, but it could serve as the prototype for future retail locations.

Although it’s not certified yet, the company hopes to achieve LEED soon, which will make the shop the first LEED building in Tukwila. They’ve reduced signage by using the actual building as the sign and also integrated rainwater harvesting and xeriscaping to minimize water consumption. Frankly we’re happy that the coffee giant is jumping on the green bandwagon as their growing interest can help push sustainability and design further. We can’t particularly say we’re please that the latest shop is a drive-thru, but at least they included other strategies to reduce the impact.

If you happen to be passing through Tukwila, Washington, make a pit stop at Starbucks’ brand new reclaimed shipping container coffee shop. The first in what could possibly be a new branding strategy, the Reclamation Drive-Thru is built out of four shipping containers and has been designed to LEED green building standards. Designed in-house by resident Starbucks architects, the container coffee shop is part of a growing initiative at Starbucks to encourage green building to reduce energy use and operational costs as well as to push the envelope on environmental design in retail. As with all things from the global coffee dispensary, the container drive-thru is Starbucksified and emanates the same trendy design aesthetic you’d expect from their other coffee shops. We checked in with Starbucks and got them to spill the beans about their latest creation.

vía Starbucks Opens New Reclamation Drive Thru Made From Recycled Shipping Containers | Inhabitat – Green Design Will Save the World.

La nota original contiene galería de imágenes.

Lo mejor de la arquitectura entre 2009 y 2010, en «lo Próximo y lo Necesario» – Arquitectura, en lainformacion.com – XI Bienal Española de Arquitectura y Urbanismo


lainformacion.com

www.bienalarquitectura.es
http://www.bienalarquitectura.es

Sevilla, – Setecientas cincuenta obras, entre las que se encuentra lo mejor y más novedoso de la arquitectura española de 2009 y 2010, integran la exposición de la XI Bienal Española de Arquitectura y Urbanismo, que se celebra en Sevilla y cuyos premios se convocaron bajo el lema «lo Próximo, lo Necesario«.

Según informaron hoy sus organizadores, hasta el 30 de marzo podrá verse esta muestra en el convento de la Virgen de los Reyes, en Sevilla, antes de que viaje a Málaga y Granada, en fechas aún por concretar.

Con el objetivo del mínimo coste, la exposición utiliza los paneles fotográficos que recogen las obras presentadas y que son los que utiliza el jurado para otorgar los premios.

Estos paneles, que normalmente se tiran, se han empleado para construir una estructura que recuerda un castillo de naipes gigante, el cual constituye la exposición propiamente dicha y por el que el visitante puede transitar mientras ve las obras, entre las cuales destacan las cuarenta finalistas.

Según ha explicado a Efe el director de la Bienal, Félix Arranz, el lema de «lo Próximo, lo Necesario» ha hecho que a la Bienal concurran más obras que nunca -el récord anterior estaba en unas quinientas- y que lo hagan arquitectos jóvenes cuyos proyectos se han destacado por «una carga intelectual enorme».

Ese lema, según Arranz, ha hecho que a la Bienal concurran obras no solo de lo que se entiende como «arquitectura cara», sino también proyectos que se han distinguido por su sencillez y creatividad, como una casa construida sobre un antiguo pajar en la montaña.

Montaje XI BEAU. | XIBienalarquitectura.es
Montaje XI BEAU. | XIBienalarquitectura.es

Del jurado de la Bienal, Arranz ha destacado que está compuesto por arquitectos dedicados al urbanismo y a la construcción, lo que ha supuesto una «mutua exigencia» y ha propiciado que los proyectos seleccionados no pertenezcan «a esa arquitectura que cuando acaba no está bien colocada o crea conflictos innecesarios con el entorno».

En la última Bienal, correspondiente al año 2011, el Premio de Arquitectura lo obtuvieron los arquitectos Bernardo Angelini y David Casino por un edificio de 131 viviendas protegidas en Mieres (Asturias).

(Agencia EFE)

vía Lo mejor de la arquitectura entre 2009 y 2010, en «lo Próximo y lo Necesario – Arquitectura – Noticias, última hora, vídeos y fotos de Arquitectura en lainformacion.com.

SEVILLA | Bajo el lema ‘lo Próximo y lo Necesario’

Lo mejor de la arquitectura, en la XI Bienal Española de Arquitectura y Urbanismo

  • Un total de 750 obras que se podrán ver hasta el próximo 30 de marzo
  • El lema ha hecho que concurran más proyectos que nunca en esta edición
  • El jurado compuesto por arquitectos dedicados al urbanismo y construcción

Luxe blanco de Hisbalit Mosaico, ideal para piscinas cubiertas (Nota de Prensa recibida)


Piscina con Hisbalit Mosaico
Piscina con Hisbalit Mosaico

Cubrir una piscina es una excelente opción para poder disfrutarla a lo largo de todo el año.

La combinación de madera con mosaico blanco consigue una atmósfera muy limpia y relajante, ideal para disfrutar de la natación o de un rato de descanso.

Los mosaicos decorativos han evolucionado mucho en los últimos años, dando paso a nuevos colores y texturas que marcan tendencia en decoración de interiores y también en decoración de piscinas y spas.

Elegir el blanco para revestir la piscina es tendencia y el color blanco Luxe de Hisbalit Mosaico es la estrella de esta temporada. Es un color limpio, que no cansa y que combina perfectamente con el resto de la decoración y del entorno.

El color blanco Luxe es un blanco lleno de matices y reflejos, con un sutil efecto tornasolado. En una sola pieza se consiguen muchos matices distintos, y a medida que va cambiando la luz del día, se acentúan más unos u otros, añadiendo un toque lujoso y chic que hace a la piscina brillar con luz propia.

Todos los mosaicos Hisbalit son ecológicos, hechos 100% con vidrio reciclado y reciclables, para conseguir su integración en entornos naturales respetando el medio ambiente.

Hisbalit Mosaico, líder en fabricación de mosaicos vítreos.

PVP a partir de 48 €/m2

Hisbalit 

Hispano Italiana de Revestimientos SA  


hotel.info

Hoy, 24 de febrero, vídeo en directo – Seminario «Arquitectura e Industria: Construcción Industrializada | Fundación Arquitectura y Sociedad»


Director: Ignacio Paricio
Coordinación: Cristina Pardal

Fecha:
24 de febrero de 2012
Lugar: Círculo de Bellas Artes. María Zambrano

Cuota de inscripción: 20 €
Plazas de inscripción completadas

Descargar cronograma: (PDF)
Descargar cartel: (PDF)

Argumento general:

El objetivo de este seminario, común a los de ediciones anteriores, es la llamada de atención sobre la importancia de la experiencia innovadora fruto de la colaboración entre algunos arquitectos y algunas industrias.

El área de estudio agrupa a las industrias que prefabrican componentes de gran tamaño para la edificación. Se trata de una técnica conocida desde hace décadas para la industrialización de la vivienda masiva que hoy busca su lugar en el sector prefabricando componentes para una arquitectura más personal y “customizada”. La gama de técnicas y materiales es muy amplia desde el hormigón, al acero y la madera, de los componentes planos a los volumétricos. De los ligeros a los pesados.

vía Arquitectura e Industria: Construcción Industrializada | Fundación Arquitectura y Sociedad.

Entrada anterior en ArquitecturaS:

Seminario “Arquitectura e Industria: Construcción Industrializada” – organizado por la Fundación Arquitectura y Sociedad (Círculo de Bellas Artes de Madrid)

Post vinculado Vídeo en directo, viernes 24 «Seminario “Arquitectura e Industria: Construcción Industrializada” – desde el Círculo de Bellas Artes de Madrid»

«Vivir en la arquitectura», A-Cero: Joaquin Torres and Rafael Llamazares at the Valencian Institute for Modern Art


Vivir en la arquitectura reviews all these aspects of the work of Torres and Llamazares in a retrospective show.
Vivir en la arquitectura reviews all these aspects of the work of Torres and Llamazares in a retrospective show.

VALENCIA.- Vivir en la arquitectura. A-cero: Joaquín Torres y Rafael Llamazares (Living in Architecture. A-cero: Joaquín Torres and Rafael Llamazares) is the title of a complete exhibition that the IVAM is showing, devoted to the work over the last fifteen years of the well-known architects’ studio based in La Finca, Pozuelo de Alarcón, with international offices in various cities of the world, including Dubai, Ho-Chi-Minh City, Beirut, Moscow, Bombay and Santiago de Chile.

Joaquín Torres and Rafael Llamazares founded A-cero Arquitectos in 1996 and since their early days in the city of A Coruña they have developed a wide-ranging creative programme of residential dwellings, especially in Madrid. The monumental features and avant-garde style of their detached houses have become recognisable in the La Finca housing development, and past customers include famous celebrities from the worlds of sport, entertainment and finance.

However, looking far beyond the great success achieved by A-cero and the impact that they have made in the media, their work links up with the great figures in contemporary architecture, ranging from Le Corbusier and Mies van der Rohe to Richard Neutra, and has clear influences from avant-garde sculpture. The homes that A-cero design are architecture with large volumes and empty spaces, clearly suggesting a connection with the sculptural work of artists such as Chillida, Oteiza or Richard Serra.

The exhibition Vivir en la arquitectura promoted by the Institut Valencià d’Art Modern (IVAM) reviews all these aspects of the work of Torres and Llamazares in a retrospective show that concentrates on the presentation of a spectacular space simulating the interior of a home, complemented by numerous photographs, plans and models of the entire range of A-cero’s work, together with furniture that the studio has designed and a creative video produced for the occasion.

Vivir en la arquitectura also takes a look at A-cero’s proposals for various emblematic buildings and their latest contribution to the design and production of modular homes, one of the themes that has always aroused greatest interest in the Modern Movement. The daring designs that they have presented in competitions can also be seen in this exhibition, designs that have served as an experimental area for the evolution of A-cero’s construction methods and style.

vía A-Cero: Joaquin Torres and Rafael Llamazares at the Valencian Institute for Modern Art.

Vivir en la arquitectura. A-cero: Joaquín Torres & Rafael Llamazares – IVAM

Imagen: blogdeldiseno.com
Imagen: blogdeldiseno.com

Bajo el título “Vivir en la Arquitectura. A-cero: Joaquín Torres y Rafael Llamazares”, el IVAM muestra una completa exposición dedicada al trabajo en los últimos quince años del conocido estudio de arquitectos radicado en La Finca de Pozuelo de Alarcón, pero ya con sedes internacionales en diversas ciudades del mundo como Dubai, Ho-Chi-Minh, Beirut, Moscú, Bombay o Santiago de Chile.

Joaquín Torres y Rafael Llamazares fundaron A-cero Arquitectos en 1996, y tras un periplo en la ciudad de A Coruña, han venido desarrollando sobre todo en Madrid un amplio programa creativo dedicado a la edificación residencial. Sus casas unifamiliares de trazos monumentales y estilo vanguardista se han hecho reconocibles en la urbanización de La Finca, y entre sus clientes no han faltado personalidades muy famosas del mundo del deporte, los espectáculos o las finanzas.

BIENVENIDOS A “VIVIR EN LA ARQUITECTURA”, LA RETROSPECTIVA DEDICADA A A-CERO EN EL IVAM DE VALENCIA – A-cero blog

EXPOSICIÓN EN VALENCIA

‘Vivir en la arquitectura’, en el IVAM

EUROPA PRESS | VALENCIA

 Joaquín Torres (Barcelona, 1970) y Rafael Llamazares (León, 1970), artífices del estudio ‘A-cero’, inauguran en el Institut Valencià d’Art Modern (IVAM) ‘Vivir en la arquitectura’, una gran instalación en la que los autores se reivindican como algo más que «los arquitectos de los famosos» para dar a conocer su filosofía de trabajo, que apuesta por «popularizar» esta disciplina y «crear espacios llenos de sensaciones».

La selección convierte la Galería 1 del espacio cultural, de aproximadamente 900 metros cuadrados, en una vivienda a escala real tipo loft en la que ‘A-cero’ refleja su estética «coherente» y alejada de «pastiches». La instalación simula una residencia –que en la realidad podría alcanzar los 500.000 euros– con mobiliario diseñado también por el estudio para evocar «un mundo de texturas, de colores y sensaciones». En total, se exhiben planos, fotografías y unas 25 maquetas que plasman los «conceptos iniciales» de las estancias.

Web de A-cero, Estudio de Arquitectura y Urbanismo

Entradas anteriores en ArquitecturaS:

JOAQUÍN TORRES – Arquitecto: “Los arquitectos también necesitamos vendernos para tener trabajo” – Faro de Vigo

El arquitecto Joaquín Torres vende su mediática casa por más de ocho millones de euros | Vivienda | elmundo.es

The deeply strange “1001 Nights” house by architects A-Cero

https://twitter.com/#!/darioalvarez/status/172684827462610944

«Los arquitectos no provocamos la burbuja inmobiliaria» – elConfidencial.com


EL PRESIDENTE DEL CÍRCULO DE BELLAS ARTES DE MADRID

EFE

Juan Miguel Hernández León - Foto: web del Círculo de Bellas Artes de Madrid
Juan Miguel Hernández León - Foto: web del Círculo de Bellas Artes de Madrid

El presidente del Círculo de Bellas Artes de Madrid, Juan Miguel Hernández León, ha afirmado en Pamplona que, pese a que «en ocasiones se culpa a los arquitectos de haber contribuido a la burbuja inmobiliaria en España, ellos sólo han sido un instrumento de mecanismos económicos y financieros».

Hernández se pronunció en este sentido con motivo de su participación en un curso en el Máster en Diseño Arquitectónico de la Universidad de Navarra y una conferencia en la Escuela de Arquitectura, según ha informado hoy el citado centro académico. En su intervención reivindicó la aportación de los arquitectos en los últimos años, que a su juicio «ha supuesto una transformación muy importante para el país. En general, han creado una oferta de gran calidad».

«Sus propuestas han sido muy distintas, pero en la mayoría se percibe un sentimiento de adecuación entre fines y medios, que los clásicos denominaban ‘decoro arquitectónico’. La luxuria, como elemento negativo de cualquier práctica, se ha quedado fuera en los aspectos más significativos de la arquitectura española. La responsabilidad social ha marcado la senda», apuntó.

Por otra parte, recalcó que a lo largo de la historia, «las propuestas más significativas de renovación arquitectónica» se han producido en momentos de crisis económica. «Ese tiempo de espera, si no se transforma en fosilización, es positivo: permite tomar impulso para avanzar en el camino», reconoció.

Con respecto a los arquitectos españoles que viajan al extranjero en busca de nuevas oportunidades, especialmente los más jóvenes, negó que se trate de algo negativo.

vía «Los arquitectos no provocamos la burbuja inmobiliaria» – elConfidencial.com.

Profesionales cualificados

El presidente del Bellas Artes insta a los arquitectos a salir al exterior – cincodías.com.

Cinco Días – Madrid –

El presidente del Círculo de Bellas Artes de Madrid, Juan Miguel Hernández León, aseguró ayer en una conferencia impartida en la Escuela de Arquitectura de la Universidad de Navarra que a los arquitectos que tienen que salir al extranjero «se les abren grandes posibilidades de trabajar en el ámbito internacional, lo que influirá para conseguir una buena formación y capacidad de generar respuestas de forma rápida, intuitiva y creativa».

«Como muchos otros profesionales cualificados, los arquitectos hemos luchado por un espacio común y global. No cabe, pues, compararlo con la emigración de los años 50 o 60; en esa época se movilizaba la fuerza de trabajo y ahora, en cambio, la capacidad profesional», advirtió.

Respecto a la situación que viven estos profesionales, con uno de cada dos arquitectos en situación de desempleo, según anunció recientemente el presidente del Consejo de Colegios de Arquitectos de España, Jordi Ludevid, Juan Miguel Hernández, señaló que los arquitectos no contribuyeron a la burbuja inmobiliaria. «En ocasiones se culpa a los arquitectos de haber contribuido a la burbuja inmobiliaria en España, pero ellos solo han sido un instrumento de mecanismos económicos y financieros».

Experto sostiene que los arquitectos no causaron la burbuja inmobiliaria – Juan Miguel Hernández León / abc.es.



Tori Tori, arquitectura ‘de alta cocina’ – Lifestyle – CNNExpansion.com


El arquitecto Michel Rojkind mezcló el vanguardismo con el tradicionalismo de la gastronomía nipona; el mexicano y Esrawe Studio crearon para el comensal un ambiente tranquilo y lleno de vegetación.

El diseño de Michel Rojkind y el mobiliario de Esrawe Studio hicieron que los espacios exteriores del Tori Tori Polanco estuvieran reflejados de forma vanguardista al interior del lugar. (Foto: Paulina Chávez)  cnnexpansion.com
El diseño de Michel Rojkind y el mobiliario de Esrawe Studio hicieron que los espacios exteriores del Tori Tori Polanco estuvieran reflejados de forma vanguardista al interior del lugar. (Foto: Paulina Chávez) cnnexpansion.com

CIUDAD DE MÉXICO (CNNExpansión) — La nueva sucursal del restaurante Tori Tori construida en Polanco por el arquitecto mexicano Michel Rojkind y el interiorista Héctor Esrawe, ofrece entre sus muros no sólo variedad en gastronomía japonesa, también relajantes espacios con diseño vanguardista.

Los propietarios del Tori Tori, Katsumi Kumoto y los empresarios Jorge Echenique y Jack Sourasky, le encargaron hace cuatro años a Rojkind la difícil tarea de crear un lugar que fuera más allá de la rica experiencia sensorial de la tradicional comida japonesa, de acuerdo con una artículo de la revista Quién en su edición del 3 de febrero 2012.

«Hace cuatro años me puse a pensar qué podía hacer para que Tori Tori impactara a su público y fue cuando le pedí al arquitecto Rojkind que participara», explica Kumoto.

Durante tres años, Rojkind y el estudio de diseño industrial Esrawe Studio, desarrollaron un restaurante que envuelve a los comensales en un ambiente de tranquilidad, donde la vegetación es soberana y la naturaleza del exterior se mezcla con el diseño interior del lugar.

«Buscamos reestructurar los espacios de la casa tradicional y abrirla, de manera que la gente se sintiera en el exterior; quisimos movimiento y la representación de la esencia del Japón contemporáneo, a partir de una gama de mallas», detalla Rojkind, de 42 años de edad.

El Tori Tori cuenta con espacios abiertos, terrazas, un bar de sake y un templo exclusivo dedicado a los amantes del sushi.

vía Tori Tori, arquitectura ‘de alta cocina’ – Lifestyle – CNNExpansion.com.

(nota original incluye fotogalería)


Sueño de la ciudad inteligente – elcultural.es


La Smart City deja los laboratorios y se convierte en un nuevo frente para las tecnologías de la información.

José Luis DE VICENTE

Centro de operaciones de Río de Janeiro de IBM - www.elcultural.es
Centro de operaciones de Río de Janeiro de IBM - http://www.elcultural.es

El siglo XXI está llamado a ser el siglo de las ciudades por lo que las administraciones públicas deben plantearse nuevos modelos de gestión. Para ello, la aplicación de las Tecnologías de la Información y las Comunicaciones (TIC) propone un nuevo modelo de ciudad inteligente, la Smart City.

En la localidad catalana de Sant Cugat, al norte de la capital, hay una calle distinta a todas las demás. En César Martinell, situada en una de las zonas más acomodadas de Barcelona, distintas start ups con el apoyo del Ayuntamiento local están llevando a cabo un experimento que la convierte en un prototipo de cómo gestionaremos el espacio urbano en el futuro. Cesar Martinell es la primera “calle inteligente” de España.

Aparcar el coche en la calle inteligente de Sant Cugat, por ejemplo, es algo más sencillo de lo habitual: unos paneles de información nos comunican si existen plazas disponibles en ese momento y nos dirigen hacia los espacios libres, gracias a sensores en el pavimento que detectan la presencia de otros coches aparcados. Los contenedores de residuos pueden medir su grado de ocupación, e informar al servicio de limpieza de cuando se encuentran llenos. La zona verde en la calle también cuenta con sensores, para medir la humedad y activar los aspersores de riego sólo cuando sea necesario. Incluso la iluminación de las farolas se gradúa automáticamente en función de la gente que se encuentre en la calle en ese momento, ahorrando luz cuando no es necesaria.

Si grandes empresas del sector TIC como IBM, Siemens o Cisco, se salen con la suya, el paradigma sobre el que imaginaremos nuestras ciudades en el siglo XXI girará alrededor de estas instantáneas de una ciudad armoniosamente eficiente, de tecnologías precisas que mejoran la vida del ciudadano. La oportunidad de la Smart City surge a medida que los sistemas que rigen la ciudad se informatizan y generan constantemente información. En los últimos cinco años, el Laboratorio de la Ciudad Sensible (SENSEable City Lab) del MIT se ha hecho conocido internacionalmente por sus retratos de la actividad colectiva en la ciudad a partir del análisis de los flujos de datos que generan sus redes. En sus proyectos, cartografías digitales y visualizaciones muestran cómo un diluvio repentino en Singapur se refleja en cómo se multiplican por la ciudad las peticiones de taxis.

El sueño y la promesa de la Smart City ha dejado los laboratorios para convertirse en un nuevo frente para las tecnologías de la información, que pone sus ojos ahora en la reinvención del medio urbano. Su punto de partida es que nuestras ciudades se gestionan por mecanismos obsoletos incapaces de resolver sus problemas, necesitados de una revisión profunda. Esta revisión es una oportunidad para crear una industria inmensa. A comienzos de diciembre el primer congreso y feria internacional Smart City Expo, celebrado en Barcelona, reunió a emprendedores tecnológicos, gobiernos locales y a nuevos urbanistas y arquitectos para presentar experiencias piloto y proyectos incipientes en todo el mundo.

vía Sueño de la ciudad inteligente.

Entradas anteriores en ArquitecturaS:

Se inauguró en España la primera “calle inteligente”

Inicio – SMARTCITY Expo World Congress (Fira Barcelona, 29 de noviembre al 2 de diciembre)

https://twitter.com/#!/arquitectonico/status/170880209237712897

LOOS.FM Creates Gigantic LEGO-Inspired Church Pavilion in the Netherlands | Inhabitat – Green Design Will Save the World


Foto: inhabitat.com (fotogalería en el artículo original)
Foto: inhabitat.com (fotogalería en el artículo original)

by Charley Cameron,

Whether it be christmas trees, greenhouses, or exotic animals, we have a voracious appetite for large-scale LEGO constructions. Dutch design firm LOOS.FM expanded on the life-size LEGO trend with Abondantus Giganticus, a 20 meter tall church-shaped temporary pavilion created for last year’s Grenswerk Festival in Enschede, The Netherlands. The structure was constructed from Legioblocks, which are completely reusable, stackable concrete construction blocks the size of pyramid stones which are typically put to use in industrial applications. As their name suggests, Legioblocks lock together in much the same way as their plastic counterpart, proving to be a versatile, efficent construction solution. In Abondantus Giganticus, LOOS.FM painted the blocks to reference the construction toy after which Legioblocks are named.

vía LOOS.FM Creates Gigantic LEGO-Inspired Church Pavilion in the Netherlands | Inhabitat – Green Design Will Save the World.

Abondantus Gigantus – LOOS.FM

Abondantus Gigantus’ Temporary Pavilion / LOOS.FM – ArchDaily.

legokerk legochurch Abondantus GigantusYouTube

Lego Architecture en Amazon.es

Legioblock®
Legioblock®

Web de Legioblock.

Take a look at our demo to see how a concrete wall is constructed.

Entradas anteriores en ArquitecturaS:

The World’s Largest LEGO Christmas Tree Pops Up in London! | Inhabitat – Green Design Will Save the World

Los edificios más emblemáticos del mundo, ahora en piezas Lego | expreso – Sobre “Lego Architecture”

La torre de Lego más alta, en Brasil – ABC.es

Comprar Lego Architecture en Amazon.es

¿Dónde vive ahora el ‘sueño americano’? | Estados Unidos – Exposición | Nueva propuesta del MoMA | elmundo.es


Efe | Nueva York

El tipo de vivienda, en crisis. | Efe - ElMundo.es
El tipo de vivienda, en crisis. | Efe - ElMundo.es

El Museo de Arte Moderno (MoMA) de Nueva York desmonta el «sueño americano» de la casa en las afueras de la ciudad con una muestra en la que plantea nuevas formas de entender la arquitectura en un país que tras el estallido de la burbuja inmobiliaria atraviesa una crisis de embargos hipotecarios.

«La idea de viviendas unifamiliares en complejos residenciales privados a los que solo se puede acceder en coche se ha roto, y esta nueva realidad es especialmente dura en las afueras de la ciudad», explicó el comisario de la exposición, Barry Bergdoll.

Con la ayuda del director de la Facultad de Arquitectura de la prestigiosa universidad de Columbia, Reinhold Martin, el museo neoyorquino reunió a cinco equipos de arquitectos con especialidades en diferentes campos como regulación, urbanismo o finanzas para desarrollar nuevas posibilidades arquitectónicas para las ciudades y barrios residenciales de Estados Unidos.

El resultado de ese trabajo interdisciplinar que se desarrolló a lo largo de más de ocho meses es «Embargado: realojando el sueño americano«, una exposición que incluye maquetas, dibujos, animaciones y otros materiales para ilustrar sus propuestas que se podrá visitar hasta el próximo 30 de julio.

FORECLOSED: REHOUSING THE AMERICAN DREAM - MoMA Interactives
FORECLOSED: REHOUSING THE AMERICAN DREAM - MoMA Interactives

Los arquitectos se enfrentaron al reto de ofrecer «nuevas e inventivas formas de entender la relación entre la tierra, los edificios, la infraestructura, el urbanismo y los espacios públicos» de cinco barrios residenciales cerca de Nueva York, Tampa (Florida), Chicago (Illinois), Los Ángeles (California) y Portland (Oregón), señala el MoMA en un comunicado.

Y es que son precisamente áreas a las afueras de grandes ciudades como ésas las que han sufrido más duramente el golpe del estallido de la burbuja inmobiliaria de la pasada crisis económica y las consecuentes ejecuciones hipotecarias que dejaron a millones de estadounidenses sin hogar.

Rendering of Nature-City, Salem-Keizer, Oregon. 2011. Courtesy WORKac - Web del MoMA
Rendering of Nature-City, Salem-Keizer, Oregon. 2011. Courtesy WORKac - Web del MoMA

«La crisis de embargos hipotecarios reveló una crisis en nuestra imaginación que retrasó una urgente necesidad de debatir sobre los fallidos supuestos del ‘sueño americano’ y del más visible de sus símbolos, la casa en el barrio residencial», aseguró Martin.

El proyecto busca «servir como catalizador para invitar a arquitectos y diseñadores a trabajar en nuevas formas de abordar los problemas más urgentes de nuestro tiempo», dijo el comisario de la muestra.

Así, el proyecto propone por ejemplo una «Ciudad Natural» para la pequeña Keizer, enclavada entre dos grandes urbes como son Eugene (Oregón) y Seattle (Washington), que supondría la creación de un gran complejo habitacional circular, con jardines y terrazas en cada casa.

Éste estaría construido sobre una planta que procesaría residuos orgánicos para transformarlos en un abono que crearía gas metano con el que suministrar de energía eléctrica a toda la comunidad, en un intento por cambiar «radicalmente la visión de la vida en los suburbios al combinar la densidad asociada a las grandes ciudades con una conexión con la naturaleza».

vía ¿Dónde vive ahora el ‘sueño americano‘? | Estados Unidos | elmundo.es.

El MoMa desmonta un mito del sueño americano.

Girls' Club House in Keene NH

Sobre esta Exposición, en la Web del MoMA.

Foreclosed: Rehousing the American Dream.

February 15–July 30, 2012

Architecture and Design Galleries, third floor.

REHOUSING THE AMERICAN DREAM – MoMA Multimedia.

https://twitter.com/#!/arquitectonico/status/170481499374751744

Diseña un sitio como este con WordPress.com
Comenzar